632 7th Ave S
Hopkins, MN 55343

Scroll to Content

Details

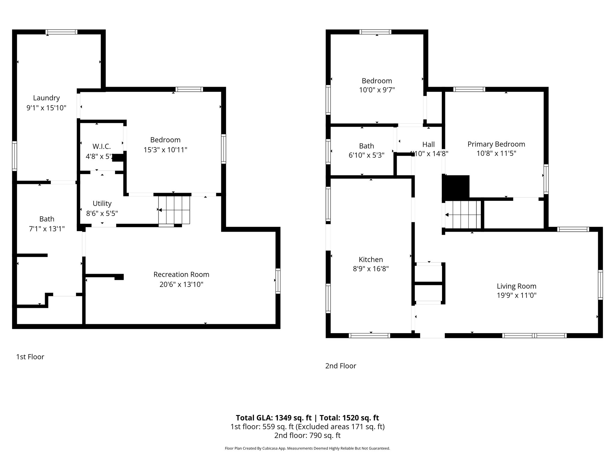
Hello Hopkins! Welcome to this thoughtfully updated one-level home just minutes from downtown Hopkins, with easy access to local shops, dining, and year-round events along Mainstreet. Combining location, charm, and stylish modern updates, this home offers comfortable living in a highly sought-after neighborhood near multiple parks and just a short drive to Shady Oak Beach. Set on a private, wood-fenced lot, the home blends classic 1945 character with today’s must-have updates. The main level features two bedrooms, a full bath, and an open-concept layout filled with natural light. The living room is surrounded by windows, creating a bright, airy feel, while gleaming hardwood floors extend through the living space and bedrooms. The updated kitchen showcases granite countertops, white cabinetry, a subway tile backsplash, and a cozy dining nook—perfect for everyday living and casual gatherings. The finished lower level offers flexible space for a home office, workout area, or hobbies, along with a third bedroom, ¾ bath, and a spacious family room—ideal for relaxing at the end of the day. Major updates provide peace of mind, including newer roof and siding, plus updated garage doors, windows, and exterior doors. Enjoy the private backyard—perfect for entertaining, gardening, or quiet evenings at home. Move-in ready with the space, updates, and location you’re looking for!

  • $409,000
  • 3 Bedrooms
  • 2 Bathrooms
  • 1,500 Sq/ft
  • 2 Parking Spots
  • Built in 1945
  • MLS: 7051819

Images

Videos

Floor Plans